For More Information or to Schedule a Showing Call or Text 1 (855) 861-7162
PROPERTY DESCRIPTION:
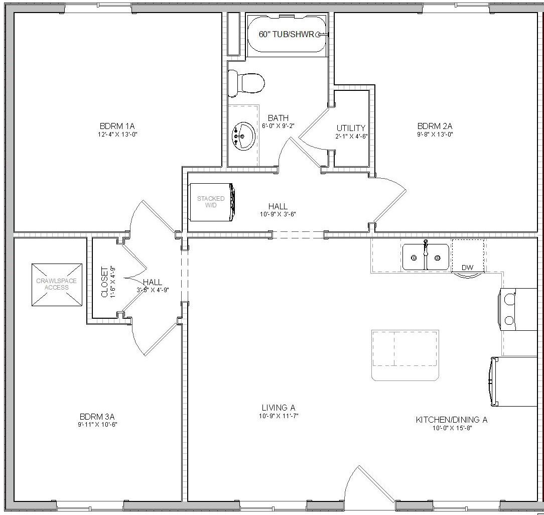
Redbird Meadows in Hayti, SD feature newly constructed 2 and 3 bedroom floorplans. This beautiful property has everything you’ve been looking for – modern finishes, new appliances and premium amenities. Redbird Meadows is also pet friendly.*
*Pet Policy: Max of 2 Pets – One time $250 Non-Refundable Pet Processing fee + Monthly Pet Rent: $50/month for the 1st pet & an additional $50/month for the 2nd pet
PRICING BREAKDOWN:
| Floorplan | Price | Bed | Bath | Sq Ft |
| 2 Bedroom | $1050 | 2 Bed | 1 Bath | 675 |
| 3 Bedroom | $1180 | 3 Bed | 1 Bath | 960 |
Property Id : 28863
Price: Starting at $ 1,050 /Month
Bedrooms: 3, 2
Bathrooms: 1
Number Of Units: 8
Garages: N/A
Utilities Included: Water/Sewer & Garbage
Non-Smoking: Yes
Pets: Yes
Gas Heat
Washer and Dryer
Dishwasher
Lawn Care
Snow Removal
Off-Street Parking
24 hour Emergency Maintenance
South Dakota Crime Free Housing Program
Pet Friendly





























