A password will be e-mailed to you
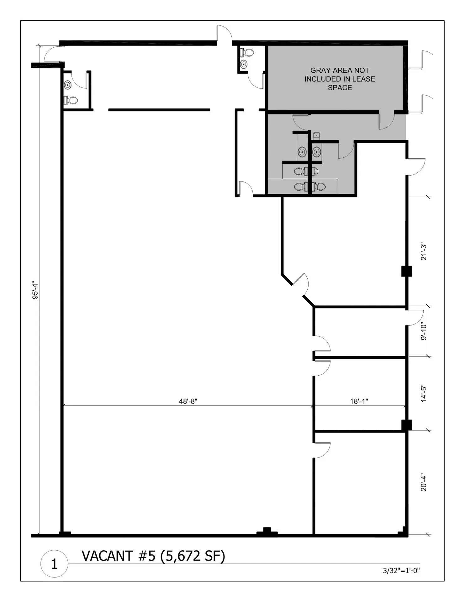
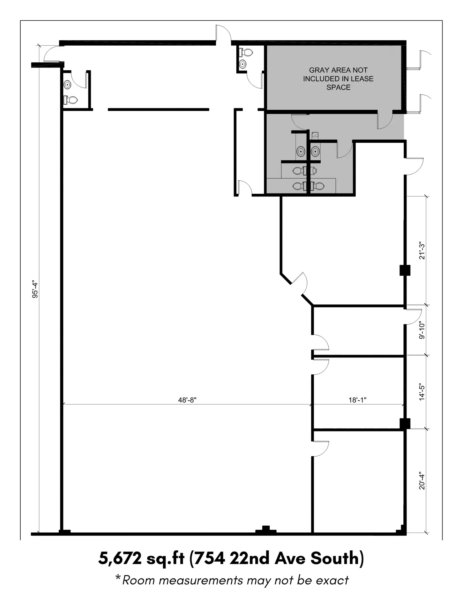
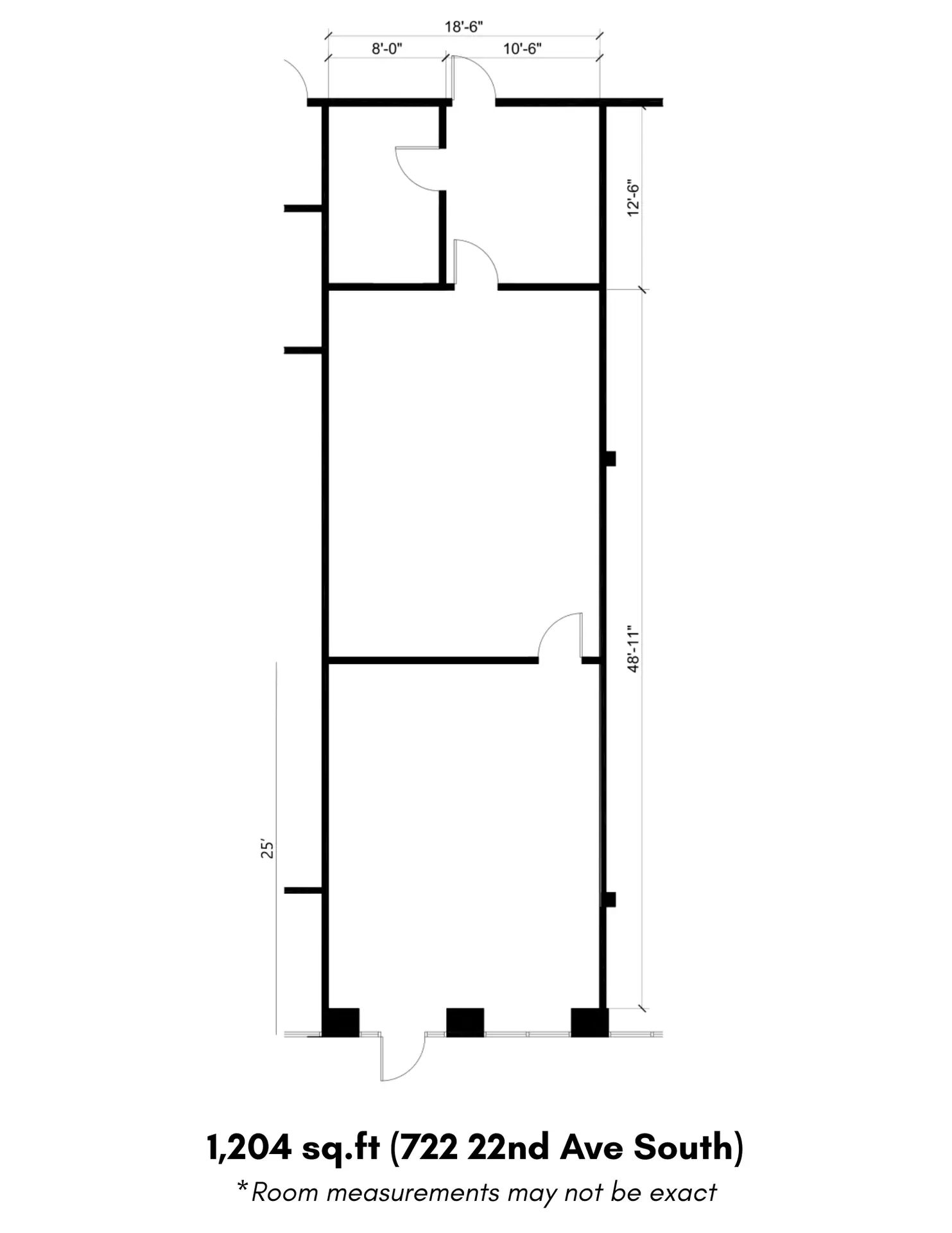
Eastside Commons in Brookings, SD is located in one of the highest traffic areas in the city, and close to many new housing neighborhoods. The Eastside Commons Development spans a full block from Orchard Drive to 8th Street South and offers a wide variety of retail and professional office leasing opportunities.
SPACES AVAILABLE:
Use the form below to contact us!






































